|
Оферта №16055, Цена: 197496 EUR Тристаен, София, Красна Поляна, 101 кв.м, ет. 2/8, Тухла
|
|
|
Площ 101 м2, Етаж: 2 от 8
Строителство : Тухла
Отопление : Газ
Агенция АНРИ прeдлага тристаен апартамент в новострояща се гухлена сграда. АКТ 14. Луксозни общи части, асансьор.Доказан строител.
МЕСТОПОЛОЖЕНИЕ: Намира се до спирки на градския транспорт, детска градина, училище.
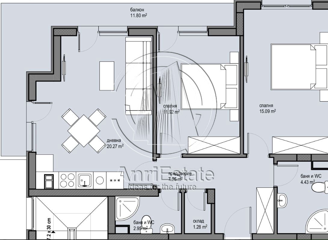
РАЗПРЕДЕЛЕНИЕ: 88,93 кв.м. застроена площ. Състои се от предверие, хол, трапезария и кухненски бокс, две спални, две бани с тоалетни, складово помещение, тераса.
СЪСТОЯНИЕ: Продава се на шпакловка и замазка. Петкамерна дограма с троен стъклопакет и ка-стъкло. Отопление на газ.
ИЗЛОЖЕНИЕ: Изток, запад.
Възможност за закупуване на подземно паркомясто.
Агенция АНРИ прeдлага тристаен апартамент в новострояща се гухлена сграда. АКТ 14. Луксозни общи части, асансьор.Доказан строител.
МЕСТОПОЛОЖЕНИЕ: Намира се до спирки на градския транспорт, детска градина, училище.
РАЗПРЕДЕЛЕНИЕ: 88,93 кв.м. застроена площ. Състои се от предверие, хол, трапезария и кухненски бокс, две спални, две бани с тоа... |
Брокер: Брокер
Телефон:
Мобилен: 0885980205
|
|
Брокер: Брокер
Офис : Централен
Телефон:
Мобилен: 0885980205
e-mail : info1@anri.bg
|
|
|
|
|